




90 000 $ US USD
Terrains à vendre, xxxx 37th Ave NE, Other City - In The State Of Florida, Floride 34120, États-Unis
- #MLSA11908152
4 613 m² (49 658 ft²)
Annonce par Fast Action Realty Inc
La propriété suivante,Terrain, située xxxx 37th Ave NE, Other City - In The State Of Florida, Floride 34120, États-Unis est présentement à vendre.xxxx 37th Ave NE, Other City - In The State Of Florida, Floride 34120, États-Unis affiche un prix de90 000 $ US.
Caractéristiques de la propriété
Propriété
- Lieu: Lotissement
Lot/Terrain
- Superficie du terrain/lot:
4 613 m² (49 658 ft²)
Description
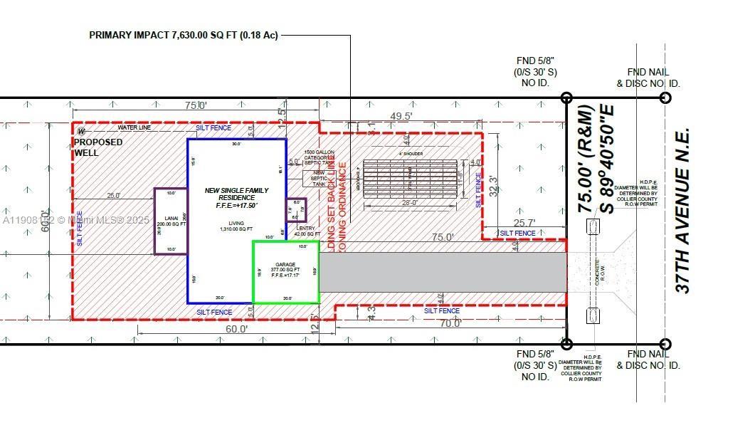
DEP Report available and ERP plans APPROVED for a 1310sf ; 2 car garage with a lanai. The ERP Permit has already been obtained—no waiting required. A current survey is also included. All supporting documents can be provided upon request. See picture of the floorplan attached. LOCATION, LOCATION, LOCATION! Off of Everglades Blvd and 37th Ave NE. This outstanding vacant lot presents an excellent opportunity for anyone to build their ideal home or retreat. Conveniently located just a short drive from Naples’ renowned beaches, top-rated schools, golf courses, shopping, and dining, this property combines privacy with accessibility. Don’t miss the chance to own a prime piece of Southwest Florida real estate.
Emplacement
xxxx 37th Ave NE, Other City - In The State Of Florida, Floride 34120, États-Unis